Parc Clematis is a large private residential development in Clementi with a 99-year leasehold. The development occupies a huge land area of 633,644 square feet, comprising 1,468 new launch units including 4 corner terraces, 6 strata bungalows and 8 terraces. Over 60% or 400,000 square feet is set aside for recreational facilities, including three 50m Lap Pools, one 100m Main Beach Pool, five Clubhouses and two tennis courts.
Located in close proximity to Clementi MRT station and Clementi Mall, residents will have island-wide access via the East-West Line (EWL) and no lack of food and retail options in the district. Families with school-going children will also be able to find several local schools like Nan Hua Primary, Clementi Primary and Clementi Town Secondary, within a 1km walking distance.
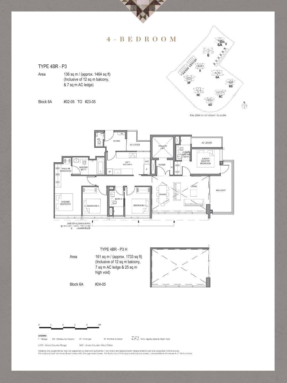
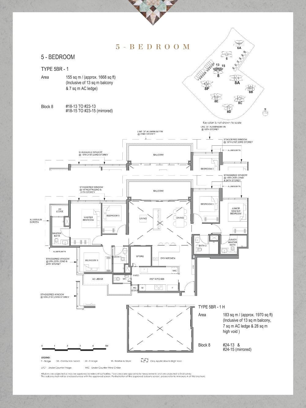
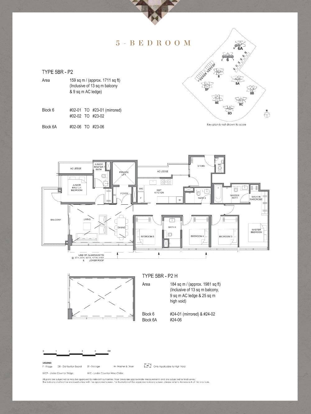
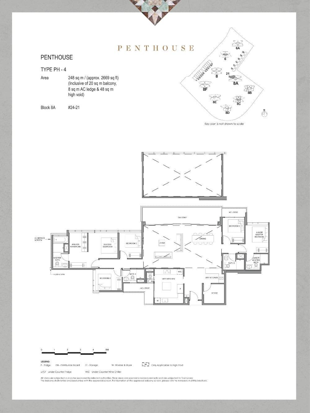
Parc Clematis is priced competitively, with only 20 larger units left, including 16 5-bedroom Premium units priced at S$3.08M-S$3.24M, one Corner Terrace at S$4.53M and three Bungalows at S$5.5M. The price per square foot (PSF) of the remaining units at Parc Clematis ranges from S$1,307 to S$1,894. The showflat is located along Jalan Lempeng and is open for viewing by appointment only. If you're interested in the property, book an appointment with the Sales team to visit the exclusive Parc Clematis showflat today.























