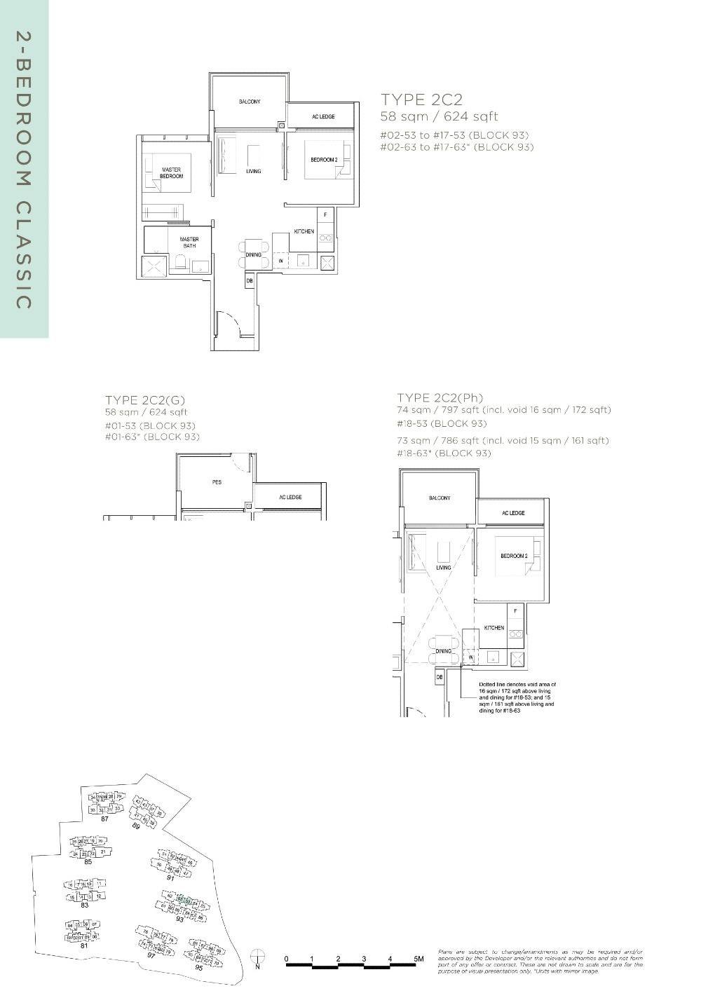
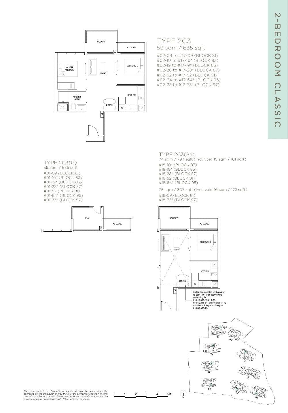
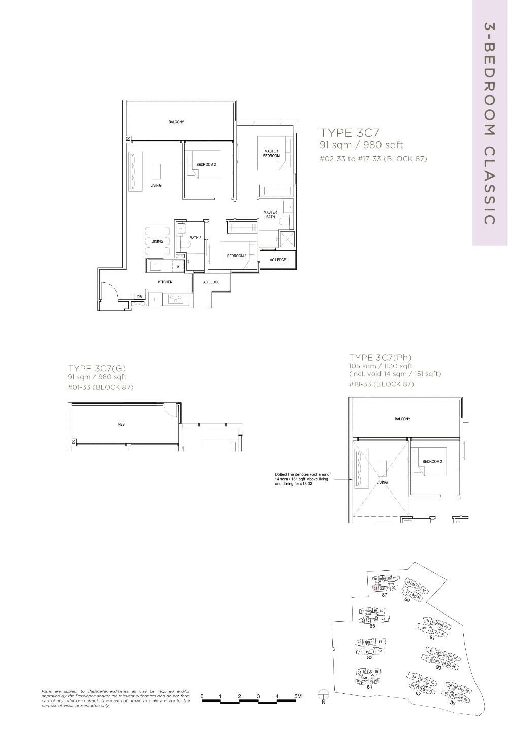
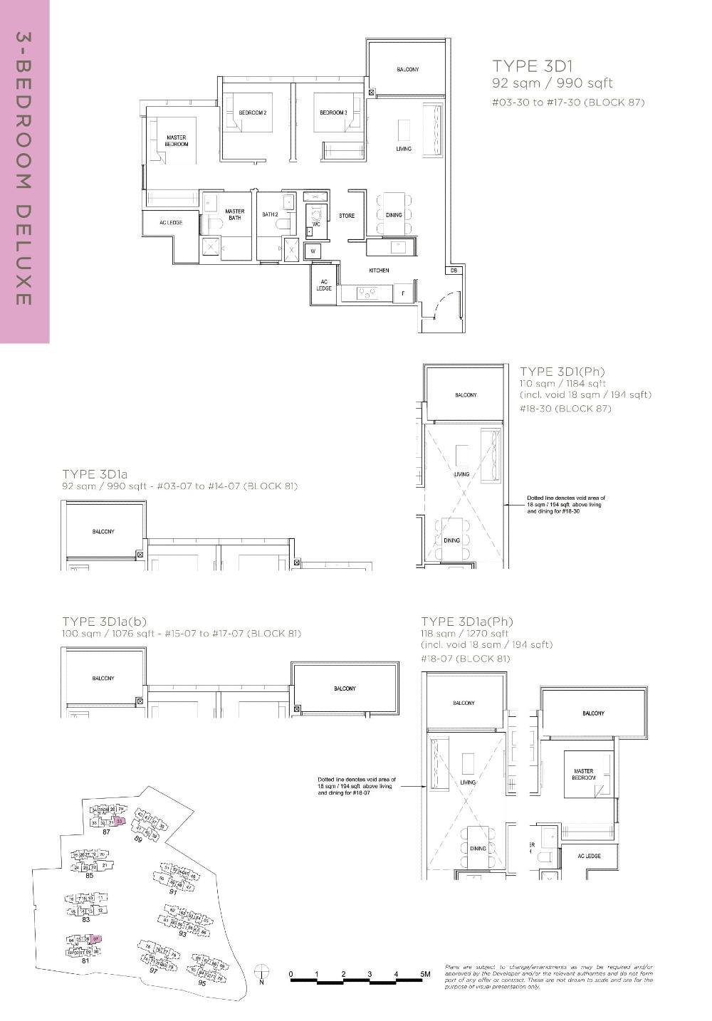
The Florence Residences is a 99-year leasehold condominium development located in the mature estate of Kovan in District 19. Completed in 2023, the development comprises of 10 blocks and 1410 units. It is conveniently located within walking distance to Kovan MRT and Hougang MRT stations, providing residents easy access to other areas of Singapore. The Florence Residences is also close to schools such as Xinmin Primary School, Xinmin Secondary School and Montfort Secondary School, making it an ideal location for young couples and families with children.
Residents can head to nearby supermarkets like FairPrice - Hougang Blk 682 and Giant Express - Hougang 683 for groceries and household products. For health emergencies or regular checkups, there are nearby clinics such as National Healthcare Group Polyclinics (Hougang) and Lim Ah Pin Road Post Office is the nearest post office where you can get your postal services done. Monetary services can be accessed at Maybank - Kovan.
The Florence Residences is built by Logan Property and sits on a 386,000+ square foot plot of the former Florence Regency HUDC, directly across the road from Hougang Stadium. The completion of the Cross-Island line will see Hougang MRT turned into a major interchange, which can significantly boost property values in the area. The development is also close to a major business park, as well as Seletar Aerospace Park, providing a steady flow of tenants. The Florence Residences boasts 128 different facilities, including a gourmet club, Hydrotherapy club, sparring ring, and more, in addition to the usual suite of condo facilities such as pools, gyms, and BBQ pits.









































